新築一戸建て 豊田市野見山町3丁目1号棟
所在地
豊田市野見山町3丁目1号棟
3,790万円
29.64坪
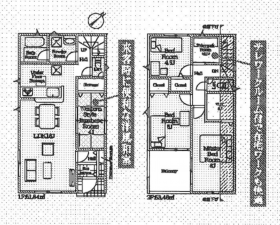
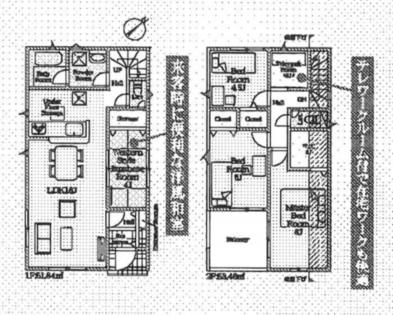
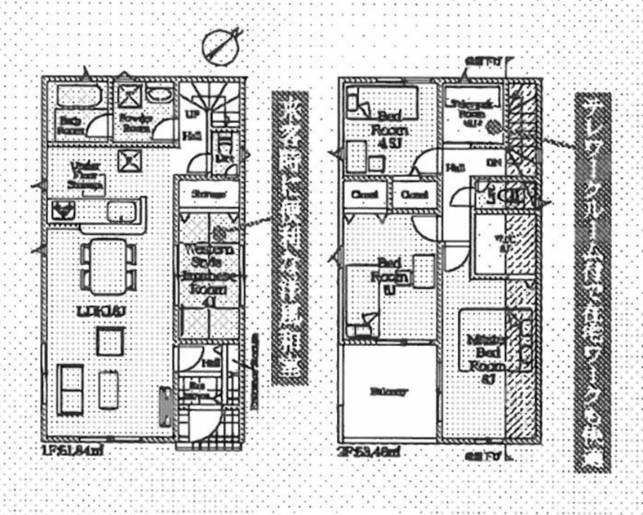
4LDK
道路に面している間口が広いため車の出し入れもラクラクです!
ローソン豊田五ヶ丘店 約1100m 徒歩約14分
やまのぶ野見山店 約850m 徒歩約11分
ドラッグスギヤマ野見山店 約1000m 徒歩約13分
古井医院 約1100m 徒歩約14分
物件概要
- 交通
-
三河線 上挙母駅 まで 徒歩55分
- 接道状況
- 南東側 公道8.1m 間口約7.1m
- 土地面積
- 実測 139.72㎡ (42.26坪)
- 建物面積
- 98.01㎡ (29.64坪)
- 築年数
- 2025年 (令和7) 12月 完成予定
- 建ぺい率
- 60%
- 容積率
- 100%
- 土地権利
- 所有権
- 構造および階数
- 木造 地上2階建
- 小学校区
- 野見 ( 1284m )
- 中学校区
- 美里 ( 1394m )
- 私道負担
- 地目
- 宅地
- 現況
- 空
- 引渡時期
- 期日指定 2026年1月 下旬
- 駐車場
- 有 普通2台
- 上水道
- 公共
- 下水道
- 公共
- ガス
- 都市ガス
- 都市計画
- 市街化区域
- 用途地域
- 1種低層
- 建築確認番号
- 第HPA-25-11665-1号
- 設備・条件
- ルーフバルコニー、システムキッチン、カウンターキッチン、シャンプードレッサー、浴室乾燥機、モニタ付インターホン、洗浄便座、ウォークインクローゼット、複層ガラス、駐車場2台分、床下収納、トイレ2箇所
- 備考
-
敷地内段差有
建物面積別に別途ルーフバルコニー約7.29平米有
敷地内擁壁有り - 取引態様
- 仲介

