新築一戸建て 豊田市平和町5丁目B棟
所在地
豊田市平和町5丁目B棟
3,880万円
32.00坪
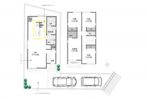
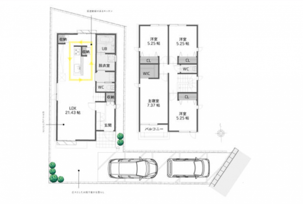
4LDK
南向きの為日当たり良好!新築4LDK!
ファミリーマート豊田平山町六丁目店 約450m 徒歩約6分
Felna前山店 約1400m 徒歩約18分
スギドラッグ前山店 約1200m 徒歩約15分
トヨタ記念病院 約1000m 徒歩約13分
物件概要
- 交通
-
愛知環状線 三河豊田駅 まで 徒歩39分
とよたおいでんバス「水源平和」停 徒歩9分
- 接道状況
- 南側6m
- 土地面積
- 実測 137.91㎡ (41.71坪)
- 建物面積
- 105.79㎡ (32.00坪)
- 築年数
- 2025年 (令和7) 12月
- 建ぺい率
- 60%
- 容積率
- 150%
- 土地権利
- 所有権
- 構造および階数
- 木造 地上2階建
- 小学校区
- 平和 ( 623m )
- 中学校区
- 豊南 ( 896m )
- 私道負担
- 地目
- 宅地
- 現況
- 空
- 引渡時期
- 相談
- 駐車場
- 有 2台
- 上水道
- 公共
- 下水道
- 公共
- ガス
- 都市ガス
- 都市計画
- 市街化区域
- 用途地域
- 1種中高
- 設備・条件
- カウンターキッチン、食器洗浄乾燥機、シャンプードレッサー、浴室乾燥機、モニタ付インターホン、洗浄便座、ウォークインクローゼット、複層ガラス、追い焚き、駐車場2台分、床下収納、トイレ2箇所
- 備考
- 取引態様
- 仲介

