マンション エルグランデ豊田
所在地
豊田市御幸本町3丁目
2,080万円
77.34m²
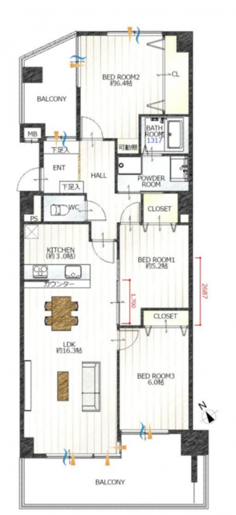
3LDK
2面バルコニーのため風通し・日当たり良好です!リノベーション済み物件で快適にお使いいただけます
ファミリーマート 三河豊田駅前店 約350m 徒歩約5分
ドミー 豊田山之手店 約700m 徒歩約9分
V・drug 大林店 約900m 徒歩約12分
ふなはし内科クリニック 約900m 徒歩約12分
物件概要
- 交通
-
愛知環状線 三河豊田駅 まで 徒歩5分
愛知環状線 末野原駅 まで 徒歩24分
- 専有面積
- 壁芯 77.34㎡
- バルコニー面積
- 15.86㎡
- バルコニー方向
- 南西
- 所在階/階数
- 3階/9階
- 築年数
-
1986年
(昭和61)
5月
築39年 - 建ぺい率
- 容積率
- 土地権利
- 所有権
- 構造および階数
- SRC(鉄骨鉄筋コンクリート) 造 地上9階建
- 総戸数
- 44戸
- 小学校区
- 大林 ( 950m )
- 中学校区
- 末野原 ( 1700m )
- 地目
- 現況
- 空
- 引渡時期
- 即時
- 駐車場
- 空有
- 駐車場月額
- 6,750円/月
- 管理形態
- 全部委託
- 管理方式
- 管理人日勤
- 管理会社
- 中部五光株式会社
- 管理費
- 9,281円
- 修繕積立費
- 10,188円
- 上水道
- 公共
- 下水道
- 公共
- ガス
- 都市ガス
- 都市計画
- 用途地域
- 商業
- 設備・条件
- システムキッチン、カウンターキッチン、食器洗浄乾燥機、洗浄便座
- 備考
- ※区費:月額800円・外部駐車場負担金789円
- 取引態様
- 仲介

