マンション Tステージ水源公園
所在地
豊田市水源町6丁目
1,599万円
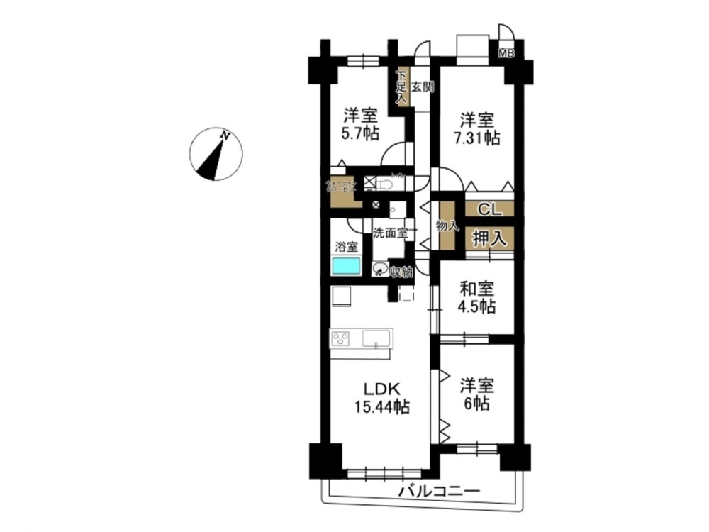
79.17m²
3SLK
南向きの為日当たり良好です!
ローソン豊田今町店 約500m 徒歩約7分
フェルナ前山店 約1200m 徒歩約15分
スギドラッグ前山店 約900m 徒歩約12分
うさみ内科クリニック 約180m 徒歩約3分
物件概要
- 交通
-
愛知環状線 三河豊田駅 まで 徒歩34分
- 専有面積
- 内法 79.17㎡
- バルコニー面積
- バルコニー方向
- 所在階/階数
- 3階/6階
- 築年数
-
1999年
(平成11)
4月
築26年 - 建ぺい率
- 容積率
- 土地権利
- 所有権
- 構造および階数
- PC(プレキャストコンクリート) 造 地上6階建
- 総戸数
- 小学校区
- 前山 ( 850m )
- 中学校区
- 豊南 ( 600m )
- 地目
- 現況
- 空
- 引渡時期
- 即時
- 駐車場
- 駐車場月額
- 5,500円/月
- 管理形態
- 全部委託
- 管理方式
- 管理人巡回
- 管理会社
- とよたすまいるライフ株式会社
- 管理費
- 9,300円
- 修繕積立費
- 12,600円
- 上水道
- 公共
- 下水道
- 公共
- ガス
- 都市ガス
- 都市計画
- 用途地域
- 1種中高
- 設備・条件
- システムキッチン、カウンターキッチン、浴室乾燥機、エレベーター
- 備考
- 取引態様
- 仲介

