マンション Tステージ豊栄町スカイレジデンス
所在地
豊田市豊栄町3丁目
3,800万円
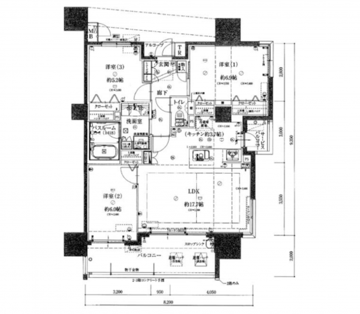
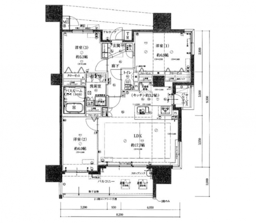
79.01m²
3LDK
最上階のため眺望良好です!
ローソン豊田豊栄町五丁目店 約350m 徒歩約5分
業務スーパー豊田南店 約250m 徒歩約4分
V・drug 大林店 約850m 徒歩約11分
ふなはし内科クリニック 約700m 徒歩約9分
物件概要
- 交通
-
愛知環状線 末野原駅 まで 徒歩15分
- 専有面積
- 壁芯 79.01㎡
- バルコニー面積
- 13.83㎡
- バルコニー方向
- 所在階/階数
- 19階/19階
- 築年数
-
2014年
(平成26)
3月
築11年 - 建ぺい率
- 容積率
- 土地権利
- 所有権
- 構造および階数
- RC(鉄筋コンクリート) 造 地上19階建
- 総戸数
- 108戸
- 小学校区
- 前山 ( 1700m )
- 中学校区
- 末野原 ( 1200m )
- 地目
- 現況
- 居住中
- 引渡時期
- 相談
- 駐車場
- 空有
- 駐車場月額
- 9,500円/月
- 管理形態
- 全部委託
- 管理方式
- 管理人日勤
- 管理会社
- トヨタすまいるライフ(株)
- 管理費
- 11,100円
- 修繕積立費
- 15,900円
- 上水道
- 下水道
- ガス
- 都市ガス
- 都市計画
- 用途地域
- 1種住居
- 設備・条件
- システムキッチン、カウンターキッチン、食器洗浄乾燥機、シャンプードレッサー、浴室乾燥機、洗浄便座、駐車場2台分、エレベーター
- 備考
-
・トランクルーム面積0.42㎡(※専有面積に含)
・アルコーブ面積1.09㎡・駐車場料金は2台分
・2027年度に大規模修繕工事実地予定
・2028年7月~修繕積立金18,200円へ増額予定
・ペット相談 - 取引態様
- 仲介

